Na prodajumezoneta od 73 kv.m na Sitoniji (Halkidiki). Mezoneta se sastoji od 2 sprata. na prvom spratu se sastoji od jedne spavaće sobe, dnevne sobe sa kuhinjom, kupatila sa tuš kabinom. Loft se sastoji od 2 spavaće sobe, kupatila sa tuš kabinom. Mezoneta Je dvostrano orijentisan Nekretnina nudi lep pogled na grad.Poseduje i solarni bojler, klima uređaj, parking, grejanje.
Dvospratna mezoneta 73 m² (B3) na prodaju – Nikiti, Halkidiki
Odlična novogradnja smeštena u priobalnom naselju Nikiti, samo 170m od mora. U neposrednoj blizini restorana, kafića i prodavnica, idealna kako za lično korišćenje, tako i za turističko izdavanje.
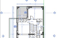
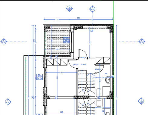
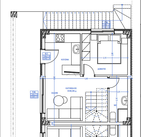
Mezoneta se prostire na dva nivoa.
Prvi sprat sadrži dnevni boravak sa kuhinjom, jednu spavaću sobu i kupatilo.
Galerija (potkrovlje) ima još dve spavaće sobe i drugo kupatilo.
Karakteristike:
Rok završetka: 2026
Idealna investicija u atraktivnoj oblasti Nikitija.





























